Concurso Hellowood Superposición. “Diseño y Espacio Educativo”
2019
Autores: Florencia Fernández Méndez; Andrés Crosetti; Rocío Macarena Gómez; Lucía Citterio; Manuel Eberbach; Martina Bahlke; Nicolás Compagnucci
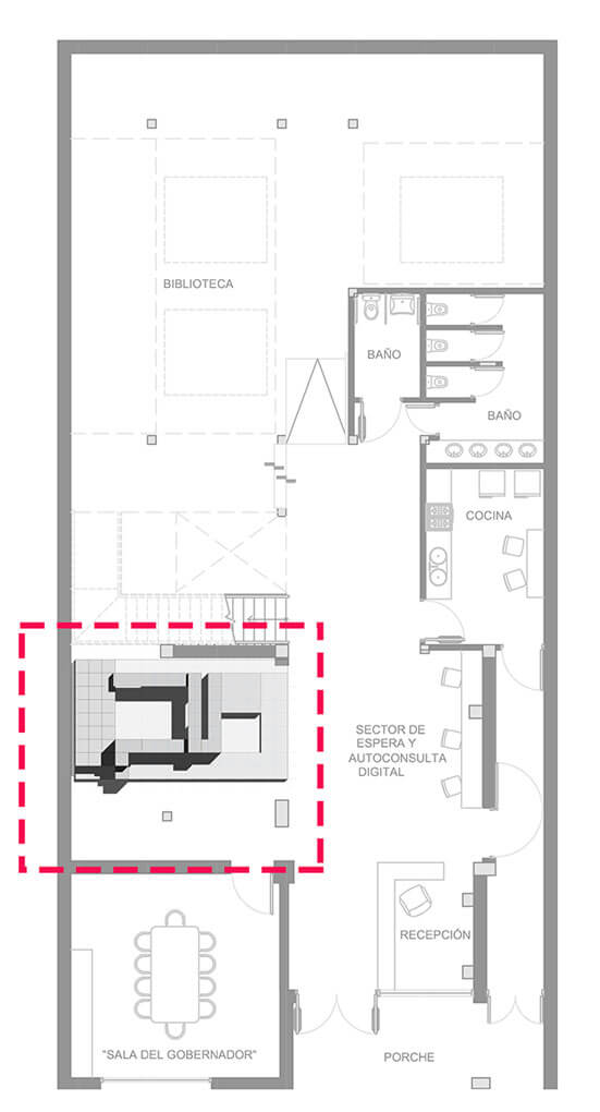
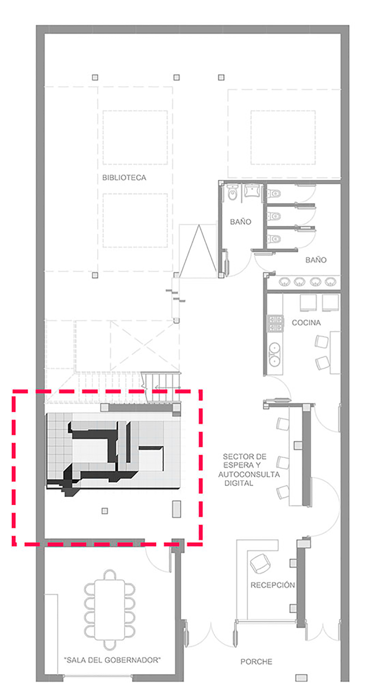
El dispositivo que proponemos en este concurso se proyecta como enclave de encuentro para las diferentes
generaciones que asisten a la Biblioteca “Juan Bautista Alberdi”. Para identificar requerimientos espaciales,
necesidades sociales y problemas específicos, se realizaron relevamientos etnográficos.
Se buscó promover el interés por la lectura compartida, la producción intergeneracional, el aprendizaje y la
sociabilización. El dispositivo diseñado se adapta a las situaciones espaciales reales aprovechando las
dimensiones existentes y necesidades sociales.











