Anteproyecto «Cafecito, bar de “La pastelería”, Rosario»

2024

Autores: Florencia Fernández Méndez, Sebastián Torres

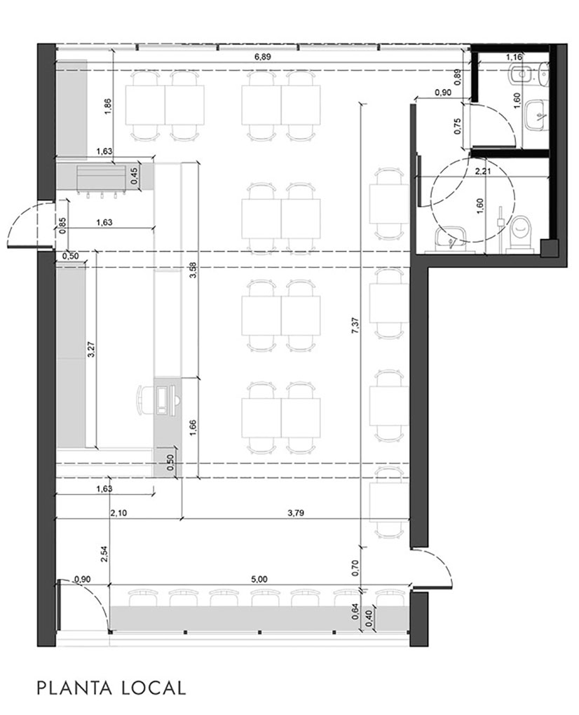
La propuesta para el primer bar de “La pastelería”, Cafecito, surge como deseo de Ricardo Saez y sus hijos para llevar a cabo la propuesta gastronómica en la ciudad de Rosario, en julio de 2024. El proyecto fue ejecutado por sus dueños para el local comercial de calle Presidente Roca 730 y posteriormente para el local de 9 de Julio 1617.