Arquitectura y Etnografía | Architecture & Ethnography

Anteproyecto Bar “Maple”

2024-2025

Autoras: Florencia Fernández Méndez, Catalina Cricco

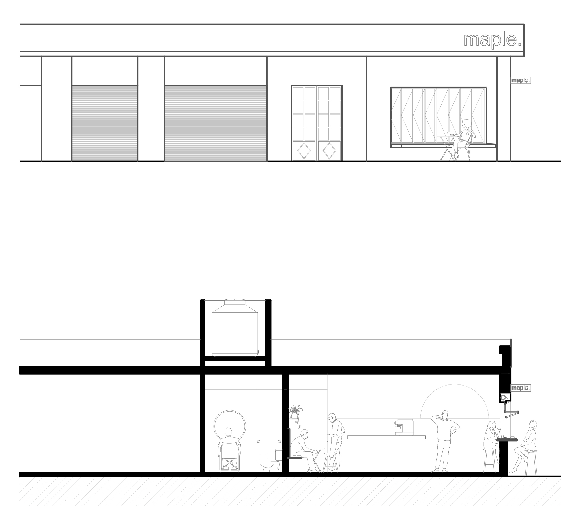
El anteproyecto del bar “Maple” surge como propuesta para un local de la ciudad de Rosario, ubicado en la esquina de Dean Funes y Moreno. La propuesta busca diálogo con las residencias vecinas en cuanto a altura del inmueble y aberturas.

Al brindar una alternativa de delivery, el proyecto presenta dos ingresos, conservando las aberturas originales (con tratamiento de restauración y pintura).

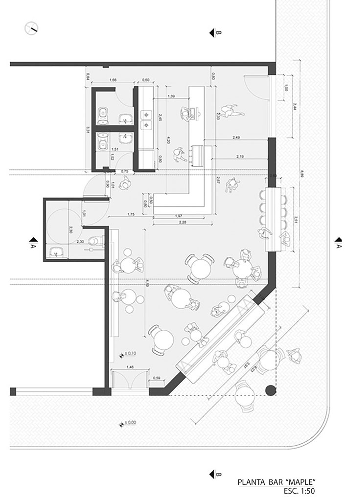
Se conservan y amplían los vanos existentes y se genera un núcleo sanitario y sector de servicio en un local anexo de los propietarios.